Mẫu nhà góc THG5 Lovera Premier Khang Phúc Bình Chánh ở lô R-18.
Khu vực mặt tiền đường song hành quốc lộ 50 khu Phong Phú 4 Bình Chánh. Với lợi thế hạ tầng kết nối nhanh chóng với trung tâm Tp Hồ Chí Minh.
Khu vực đang được quản lý bởi chủ đầu tư Khang Phúc là công ty con của Khang Điền. Pháp lý sổ hồng riêng từng căn.
Lợi thế về tiện ích dịch vụ ở khu vực Lovera Premier vô cùng đầy đủ.
Khu dân cư hiện hữu với các tiện ích trường học, siêu thị, chợ, liền kề.
Tìm hiểu mẫu nhà THG5 dự án Lovera Premier Khang Phúc Bình Chánh

- Khu vực xây dựng đồng bộ 1trệt 3 lầu với không gian thông thoáng trước nhà, dễ dàng đậu đỗ ô tô xe máy.
Khu vực được vận hành bởi CBRE với các yếu tố an ninh và vệ sinh đảm bảo - Nội khu dự án có công viên vui chơi, hồ bơi và các tiện ích phòng gym, hệ thống shophouse kinh doanh buôn bán.
Khu vực có các tiện ích liền kề như Chợ Bình Điền, Chợ Phú Lạc, shophouse đường 14 khu Lovera Park - Hạ tầng giao thông kết nối đang được nâng cấp mở rộng quốc lộ 50 và kết nối đường song hành.
Khu vực này sẽ thuận tiện di chuyển giao thông và phát triển mạnh trong thời gian sắp tới.
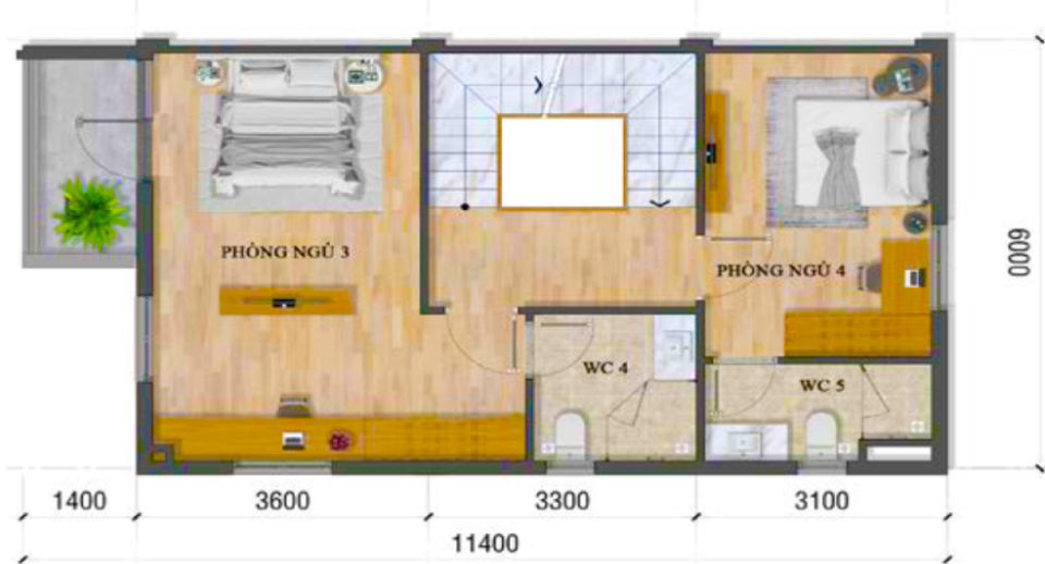
Mặt bằng thiết kế mẫu nhà THG5 dự án Lovera Premier Khang Phúc Bình Chánh





- Căn nhà góc 2 mặt tiền đường tại lô R-18
Khu vực có khoảng xanh bên hông thông thoáng, sân trước và vườn sau
Xây dựng 1 trệt 3 lầu với bố trí 4 phòng ngủ
Căn nhà có diện tích đất : 120m²
Diện tích sàn sử dụng đạt : 240,7 m² - Dự án được chủ đầu tư Khang Phúc xây dựng và phát triển tại Phong Phú 4 Bình Chánh.
Pháp lý sổ hồng riêng từng căn với đầy đủ tiện ích liền kề
Khu dân cư cao cấp thu hút nhiều nhà đầu tư bất động sản quan tâm và sinh sống
Thuận tiện đi lại và cho con em mình sử dụng các tiện ích liền kề hồ bơi, an ninh và vệ sinh môi trường. - Dự án đang là tâm điểm đầu tư phía Nam khi khởi công đường song hành quốc lộ 50 đi qua khu vực này.
Khu vực sẽ được hưởng lợi lớn nhờ các dòng phương tiện di chuyển.
Thuận tiện cho thuê mặt bằng văn phòng công ty và phát triển dịch vụ cho thuê.
Tầm quan trọng của đường song hành quốc lộ 50 chạy qua Phong Phú 4 Bình Chánh

Đường song hành quốc lộ 50 là con đường rút ngắn thời gian di chuyển từ Phong Phú 4 xuống Nguyễn Văn Linh 2km
Khu vực có lộ giới đường 52m với 6 làn đường chính thông từ cao tốc Bến Lức xuống.
Khu vực có thể làm shophouse kinh doanh buôn bán và thuận tiện cho việc mở văn phòng công ty.
Đối với nhà phố khu vực Lovera Premier Khang Phúc là một trong những dự án bố trí có cầu thang máy.
Thuận tiện cho việc mở rộng mặt bằng và tận dụng kinh doanh khách sạn, nhà nghỉ.
Khu vực còn có vị trí đắc địa do sở hữu các kết nối Nguyễn Văn Linh – QL 50 – Võ Văn Kiệt
Dễ dàng di chuyển vào trung tâm nội đô quận 1 với thời gian di chuyển nhanh.
Hạ tầng nhiều cây xanh bóng mát, vỉe hè thông thoáng sẽ là điều kiện lý tưởng phát triển mạnh về kinh doanh ăn uống.
Khu dự án đang được sự quan tâm đặc biệt của giới đầu tư sành sỏi bất động sản khu Nam Tp Hồ Chí Minh.
Nhân viên tư vấn bất động sản chuyên nghiệp
Khu vực Long Thành – Nhơn Trạch – Thủ Đức- Quận 9 – Quận 2 – Quận 7 – Bình Chánh
Nhận tư vấn – Ký gửi – Cho thuê
Trần Văn Thanh
Số điện thoại : 0932 899 823
Địa chỉ : Đường 21 Khu dân cư Lovera Park Khang Điền, Phong Phú 4 Bình Chánh Tp Hồ Chí Minh
Dự án Lovera Park Khang Điền Phong Phú 4 Bình Chánh Tp Hồ Chí Minh
Quy mô 20 Ha
- Website thông tin : https://loverapark.vn
- Kênh Youtube : 🔴 NHÀ ĐẤT KHANG ĐIỀN PHONG PHÚ 4 BÌNH CHÁNH