Mẫu nhà góc LKG18B dự án Lovera Park Khang Điền

Phối cảnh góc LKG18B Lovera Park
Tài liệu Mẫu nhà góc LKG18B dự án Lovera Park Khang Điền đã được gửi tới email của bạn. Bạn cũng có thể tải trực tiếp bằng cách bấm vào nút bên dưới:
Tải tài liệu

Mẫu nhà góc LKG18B ở khu 2 dự án Lovera Park Khang Điền Bình Chánh.
Khu vực bố trí nằm ở gần công viên trung tâm với an ninh tuyệt đối.
Khu compond có chốt bảo vệ trực và bảo vệ tuần tra 24/24.
Dự án có nhiều tiện ích trường học, hồ bơi, siêu thị hiện hữu.
Mẫu nhà hiện đại, phù hợp nhiều gia đình tại Việt  Nam. Khu vực Nam Tp Hồ Chí Minh có nhiều thông tin bất động sản tốt.
Lựa chọn đầu tư thích hợp trong năm 2024.

Tìm hiểu mẫu nhà góc LKG18B dự án Lovera Park Khang Điền Bình Chánh

Phối cảnh góc LKG18B Lovera Park
Phối cảnh góc LKG18B Lovera Park
  • Không gian sân trước, vườn sau, thông thoáng vườn hông bên phải căn nhà
    Khu vực được bảo vệ an ninh, quản lý vận hành bởi CBRE năm 2024
    Dự án do Khang Phúc làm chủ đầu tư tại Phong Phú 4 Bình Chánh Tp Hồ Chí Minh.
  • Khu vực kết nối nhanh chóng, vị trí đắc địa, thuận tiện giao thông di chuyển
    Với lợi thế hạ tầng có sẵn, phê duyệt 1/500 với nhiều tiện ích
    Công viên cây xanh, trường học, khu vui chơi, nhà văn hóa thiếu nhi, siêu thị
  • Khu dự án có thuận tiện trong đón đầu bất động sản kết nối
    Khu vực đường song hành quốc lộ 50 đang tích cực triển khai thi công và kết nối vào đường Nguyễn Văn Linh Bình Chánh.

Tìm hiểu mặt bằng thiết kế mẫu nhà góc LKG18B dự án Lovera Park Khang Điền Bình Chánh

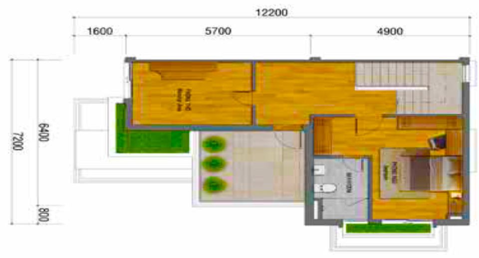
Tầng trệt góc LKG18B Lovera Park
Tầng trệt góc LKG18B Lovera Park
Lầu 1 góc LKG18B Lovera Park
Lầu 1 góc LKG18B Lovera Park
Lầu 2 góc LKG18B Lovera Park
Lầu 2 góc LKG18B Lovera Park
Thông tin góc LKG18B Lovera Park
Thông tin góc LKG18B Lovera Park
  • Diện tích đất :
    • K18, K36 diện tích 164,37m²
    • L1 Diện tích 164,37m²
  • Ngôi nhà xây dựng 1  trệt 2 lầu.
    Lô góc thông thoáng 2 mặt tiền bố trí 1 phòng khách, 1 phòng bếp, 3 phòng ngủ, 1 phòng sinh hoạt chung
    Diện tích sàn sử dụng đạt : 196,9m²
  • Căn nhà bố trí ở khu vực có bảo vệ chốt chặn an ninh, tuần tra và vệ sinh thường xuyên.
    Khu vực có hạ tầng hoàn thiện, hệ thống cây xanh bóng mát và thuận tiện cho việc sinh sống, an cư lâu dài.
  • Dự án đồng bộ compond được Khang Phúc triển khai tại Phong Phú 4 Bình Chánh
    Với lợi thế tiện ích hiện hữu, khu vực có đường giao thông kết nối nhanh chóng vào Nguyễn Văn Linh Quận 7.
    Căn nhà thiết kế với không gian thông thoáng các phòng, lối đi lại thuận tiện bài trí vật dụng
    Các căn phòng đều có cửa sổ trời lấy gió và lấy sáng tốt.
    Khu vực có gara để xe trước nhà an toàn và hành lang bên hông nhiều cây xanh.

Khu vực bố trí thiết kế lô góc LKG18B dự án Lovera Park

Vị trí góc LKG18B Lovera Park
Vị trí góc LKG18B Lovera Park
Khu 2 Lovera Park
Khu 2 Lovera Park
Bản đồ khu 2 Lovera Park
Bản đồ khu 2 Lovera Park
  • Block H và Block L nằm ở khu 2 dự án Lovera Park
    Khu vực bố trí có công viên trung tâm, sân cầu lông, khu vui chơi hồ bơi và phòng gym
    Hệ thống tiện ích trường học và siêu thị liền kề
  • Dự án phê duyệt 1/500 với các tiện ích lên hoàn thiện.
    Hoạt động ổn định trong nhiều năm qua.
    Khu vực đang hưởng lợi lớn từ giao thông hạ tầng kết nối nhanh chóng vào Nguyễn Văn Linh nhờ đường Song Hành Quốc Lộ 50
    Khu vực sẽ có có cơ hội nhiều trong tăng trưởng bất động sản vùng ven khi Bình Chánh Lên Tp phía Nam.
  • Dự án là một quá trình tâm huyết xây dựng khu dân cư mới tại Bình Chánh của Khang Điền
    Với việc đưa nhiều tiện ích dịch vụ và hệ thống trường học đạt chuẩn quốc gia phục vụ quý cư dân.

Nhân viên tư vấn bất động sản chuyên nghiệp 
Khu vực Long Thành – Nhơn Trạch – Thủ Đức- Quận 9 – Quận 2 – Quận 7 – Bình Chánh
Nhận tư vấn – Ký gửi – Cho thuê
Trần Văn Thanh
Số điện thoại : 0932 899 823
Địa chỉ :  Đường 21 Khu dân cư Lovera Park Khang Điền, Phong Phú 4 Bình Chánh Tp Hồ Chí Minh
Dự án Lovera Park Khang Điền Phong Phú 4 Bình Chánh Tp Hồ Chí Minh
Quy mô 20 Ha

    Đăng ký và nhận tài liệu miễn phí

    Vui lòng điền đầy đủ thông tin







    Liên hệ bộ phận kinh doanh
    • Liên hệ bộ phận kinh doanh
    • 0936. 340. 560